Obliczanie obciążenia stropu jest kluczowym procesem w budownictwie, który zapewnia bezpieczeństwo i stabilność konstrukcji. Właściwe obliczenia pozwalają na określenie, jakie obciążenia strop może bezpiecznie wytrzymać, co jest szczególnie istotne w przypadku domów jednorodzinnych oraz budynków użyteczności publicznej. W artykule przedstawimy krok po kroku, jak przeprowadzić te obliczenia, uwzględniając różne czynniki wpływające na nośność stropu.
Ważne jest, aby zrozumieć podstawowe pojęcia związane z obciążeniem stropu, takie jak obciążenie użytkowe i obciążenie własne. Na podstawie tych informacji można przejść do bardziej zaawansowanych aspektów, takich jak wpływ materiałów budowlanych oraz układu stropu na jego nośność. Zrozumienie tych elementów pomoże uniknąć niebezpieczeństw konstrukcyjnych i zapewnić długotrwałą stabilność budynku.
Kluczowe wnioski:- Obciążenie użytkowe w domach jednorodzinnych wynosi około 1,5 kN/m².
- Obciążenie własne stropu zależy od jego materiału, na przykład wylewka cementowa ma gęstość od 200 do 400 kg/m².
- Nośność stropu różni się w zależności od jego rodzaju, rozpiętości oraz zbrojenia.
- Obliczenia muszą uwzględniać zmienne obciążenia, takie jak śnieg czy deszcz.
- Dokumentacja budowlana powinna zawierać szczegółowe informacje o stropie, jego rozpiętości i dopuszczalnych obciążeniach.
- Widoczne uszkodzenia stropu, takie jak pęknięcia, powinny być brane pod uwagę w obliczeniach.
Jak obliczyć obciążenie stropu: krok po kroku dla każdego
Obliczanie obciążenia stropu to kluczowy proces, który wymaga zrozumienia kilku podstawowych pojęć. Obciążenie stropu składa się z obciążeń stałych i zmiennych, które muszą być uwzględnione w każdym projekcie budowlanym. Pierwszym krokiem jest określenie obciążenia użytkowego, które odnosi się do masy ludzi, mebli oraz innych przedmiotów znajdujących się na stropie. Dla domów jednorodzinnych standardowo przyjmuje się wartość około 1,5 kN/m². Następnie należy obliczyć obciążenie własne, które dotyczy masy samej konstrukcji stropu.
Ważnym elementem obliczeń jest znalezienie nośności stropu, która zależy od jego rodzaju i rozpiętości. Stropy żelbetowe charakteryzują się dużą nośnością, podczas gdy stropy drewniane są mniej wytrzymałe. Ważne jest również uwzględnienie obciążeń zmiennych, takich jak ciężar śniegu czy deszczu. Aby przeprowadzić dokładne obliczenia, warto skonsultować się z dokumentacją budowlaną, która powinna zawierać informacje o rodzaju stropu oraz dopuszczalnych obciążeniach. Na koniec, nie należy zapominać o ewentualnych uszkodzeniach, które mogą wpływać na nośność stropu.
Zrozumienie podstawowych pojęć obciążenia stropu
Obliczanie obciążenia stropu wymaga znajomości kilku kluczowych terminów. Obciążenie stałe (dead load) to ciężar samej konstrukcji stropu, w tym materiałów budowlanych i wykończeniowych. Z kolei obciążenie zmienne (live load) odnosi się do dodatkowych mas, takich jak meble czy ludzie, które mogą być obecne na stropie. Całkowite obciążenie to suma obciążeń stałych i zmiennych, co jest kluczowe dla oceny nośności stropu. Zrozumienie tych pojęć jest niezbędne do prawidłowego obliczenia obciążenia stropu w każdym projekcie budowlanym.
Jak obliczyć obciążenie stałe i zmienne w stropie
Obliczanie obciążenia stałego, znanego również jako obciążenie własne, jest kluczowym krokiem w procesie obliczania nośności stropu. Wartość ta zależy od masy materiałów budowlanych, z których wykonany jest strop, oraz od jego konstrukcji. Na przykład, wylewka cementowa ma gęstość od 200 do 400 kg/m², a anhydrytowa od 100 do 200 kg/m². Aby obliczyć obciążenie stałe, należy pomnożyć gęstość materiału przez powierzchnię stropu. Wzór na obliczenie obciążenia stałego wygląda następująco: Obciążenie stałe (kN) = Gęstość (kg/m²) × Powierzchnia (m²) / 1000.
Obliczanie obciążenia zmiennego, czyli obciążenia użytkowego, jest równie istotne. To obciążenie odnosi się do masy ludzi, mebli oraz innych przedmiotów na stropie. Dla standardowych domów jednorodzinnych przyjmuje się wartość około 1,5 kN/m². W przypadku obliczeń należy również uwzględnić zmienne obciążenia, takie jak ciężar śniegu czy deszczu, które mogą wpływać na strop. Wzór na obliczenie obciążenia zmiennego jest prosty: Obciążenie zmienne (kN) = Obciążenie użytkowe (kN/m²) × Powierzchnia (m²). Zsumowanie obciążenia stałego i zmiennego daje całkowite obciążenie stropu.Czynniki wpływające na obciążenie stropu: co musisz wiedzieć
Wielu czynników wpływa na obliczenia obciążenia stropu, a jednym z nich są właściwości materiałów budowlanych. Różne materiały, takie jak drewno, stal czy beton, mają różne gęstości i wytrzymałości, co bezpośrednio wpływa na nośność stropu. Na przykład, stropy żelbetowe są znacznie bardziej wytrzymałe niż stropy drewniane, co pozwala na większe obciążenia. Oprócz tego, niektóre materiały mogą być bardziej podatne na uszkodzenia, co również należy uwzględnić w obliczeniach. Zrozumienie tych właściwości jest kluczowe dla prawidłowego oszacowania obciążenia stropu.
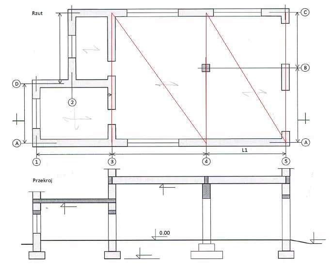
Kolejnym istotnym czynnikiem jest układ stropu oraz jego konstrukcja. Różne układy, takie jak belki czy dźwigary, mogą znacząco wpłynąć na nośność stropu. Na przykład, stropy o większej liczbie belek rozkładają obciążenie w sposób bardziej równomierny, co zwiększa ich stabilność. Warto również zwrócić uwagę na rozpiętość stropu, ponieważ większe rozpiętości mogą prowadzić do większych ugięć i potencjalnych uszkodzeń. Dlatego przy obliczeniach obciążenia stropu należy dokładnie analizować zarówno materiały, jak i ich układ konstrukcyjny.
Rola materiałów budowlanych w obliczeniach obciążenia
Wybór odpowiednich materiałów budowlanych ma kluczowe znaczenie dla obliczeń obciążenia stropu. Różne materiały, takie jak drewno, stal i beton, charakteryzują się różnymi właściwościami mechanicznymi, co wpływa na ich zdolność do przenoszenia obciążeń. Na przykład, stropy żelbetowe są znane ze swojej wysokiej nośności i odporności na odkształcenia, co czyni je idealnym rozwiązaniem w budynkach wielokondygnacyjnych. Z kolei drewno, mimo że jest lżejsze, ma ograniczoną nośność i wymaga starannego projektowania, aby uniknąć nadmiernych ugięć. Zrozumienie tych różnic jest kluczowe, aby prawidłowo oszacować, jak obciążenia wpływają na strop i jakie materiały będą odpowiednie dla danego zastosowania.
Wpływ układu stropu na jego nośność
Układ stropu, w tym rozmieszczenie belek i dźwigarów, ma znaczący wpływ na jego nośność. Różne konfiguracje, takie jak stropy belkowe czy stropy płaskie, mogą różnie rozkładać obciążenia, co wpływa na stabilność całej konstrukcji. Na przykład, stropy z większą liczbą belek mogą lepiej rozkładać obciążenie, co zmniejsza ryzyko uszkodzeń. Z kolei stropy o dużych rozpiętościach mogą wymagać dodatkowych wzmocnień, aby sprostać wymogom nośności. Dlatego podczas projektowania stropu ważne jest, aby uwzględnić zarówno materiał, jak i jego układ, aby zapewnić odpowiednią wytrzymałość i bezpieczeństwo.
Praktyczne przykłady obliczeń obciążenia stropu
Obliczanie obciążenia stropu w praktyce wymaga uwzględnienia różnych scenariuszy. W przypadku standardowego pomieszczenia, na przykład typowego pokoju dziennego, obliczenia mogą wyglądać następująco. Załóżmy, że powierzchnia pokoju wynosi 30 m², a obciążenie użytkowe przyjmuje wartość 1,5 kN/m². Zatem całkowite obciążenie użytkowe wynosi 30 m² x 1,5 kN/m² = 45 kN. Do tego należy dodać obciążenie własne stropu, które dla wylewki cementowej o gęstości 300 kg/m² wynosi 30 m² x 0,3 kN/m² = 9 kN. Zatem całkowite obciążenie wynosi 45 kN + 9 kN = 54 kN.
W przypadku bardziej nietypowego projektu, na przykład stropu w budynku użyteczności publicznej z dużymi otworami, obliczenia mogą być bardziej skomplikowane. Załóżmy, że strop ma powierzchnię 50 m² i wymaga obliczenia obciążenia zmiennego związanego z dużą ilością ludzi oraz mebli. Przyjmując obciążenie użytkowe na poziomie 2 kN/m², całkowite obciążenie użytkowe wynosi 50 m² x 2 kN/m² = 100 kN. Jeśli dodatkowo uwzględnimy obciążenie własne stropu, na przykład 12 kN, całkowite obciążenie wyniesie 100 kN + 12 kN = 112 kN. Tego typu obliczenia pomagają w zapewnieniu bezpieczeństwa i stabilności konstrukcji.
| Rodzaj stropu | Powierzchnia (m²) | Obciążenie użytkowe (kN/m²) | Obciążenie własne (kN) | Całkowite obciążenie (kN) |
|---|---|---|---|---|
| Standardowy pokój | 30 | 1,5 | 9 | 54 |
| Budynki użyteczności publicznej | 50 | 2 | 12 | 112 |
Przykład obliczenia obciążenia dla standardowego pomieszczenia
Rozważmy dokładny przykład obliczenia obciążenia dla standardowego pokoju o wymiarach 5 m x 6 m. Powierzchnia wynosi 30 m². Przy założeniu, że obciążenie użytkowe wynosi 1,5 kN/m², całkowite obciążenie użytkowe można obliczyć jako 30 m² x 1,5 kN/m² = 45 kN. Następnie, obliczając obciążenie własne stropu, przyjmujemy, że wylewka ma gęstość 300 kg/m², co daje 30 m² x 0,3 kN/m² = 9 kN. Dodając te wartości, całkowite obciążenie wynosi 45 kN + 9 kN = 54 kN. Taki przykład ilustruje, jak ważne jest dokładne obliczenie obciążenia dla zapewnienia bezpieczeństwa konstrukcji.
Obliczenia dla stropów o nietypowych kształtach i zastosowaniach
Obliczanie obciążenia dla stropów o nietypowych kształtach wymaga szczególnego podejścia, które uwzględnia unikalne cechy konstrukcyjne. Na przykład, w przypadku stropu o kształcie łuku, obciążenie musi być obliczone z uwzględnieniem zmiennej geometrii, co wpływa na rozkład sił. Przyjmując, że powierzchnia stropu wynosi 40 m², a obciążenie użytkowe szacowane jest na 2 kN/m², całkowite obciążenie użytkowe wynosi 80 kN. Dodatkowo, jeśli strop wykonany jest z materiału kompozytowego, którego gęstość wynosi 0,25 kN/m², obciążenie własne wyniesie 10 kN. W sumie, całkowite obciążenie wyniesie 90 kN, co jest kluczowe dla zapewnienia stabilności konstrukcji.

Częste błędy przy obliczaniu obciążenia stropu i jak ich unikać
W obliczeniach obciążenia stropu pojawia się wiele typowych błędów, które mogą prowadzić do poważnych konsekwencji. Jednym z najczęstszych problemów jest pomijanie obciążenia własnego stropu, co może skutkować niedoszacowaniem całkowitego obciążenia. Innym błędem jest niewłaściwe uwzględnienie obciążeń zmiennych, takich jak ciężar śniegu czy mebli. Często również ignoruje się normy budowlane, co może prowadzić do niezgodności z przepisami. Warto również pamiętać o błędach w pomiarach, które mogą wpływać na dokładność obliczeń.
Aby uniknąć tych pułapek, warto stosować kilka sprawdzonych strategii. Pierwszym krokiem jest dokładne zapoznanie się z dokumentacją budowlaną, która zawiera istotne informacje o materiałach i ich właściwościach. Dobrze jest również korzystać z programów komputerowych do obliczeń, które mogą zminimalizować ryzyko błędów. Regularne konsultacje z inżynierami budowlanymi pozwolą na weryfikację obliczeń oraz dostosowanie ich do obowiązujących norm. Ostatecznie, warto również przeprowadzać symulacje obciążeń, aby upewnić się, że konstrukcja będzie wystarczająco stabilna w różnych warunkach.
Jakie są najczęstsze pułapki w obliczeniach stropowych
Podczas obliczania obciążenia stropu, wiele osób popełnia typowe błędy. Po pierwsze, często zdarza się pomijać obciążenie własne stropu, co prowadzi do niedoszacowania całkowitego obciążenia. Po drugie, niektórzy ignorują zmienne obciążenia, takie jak ciężar śniegu czy mebli, co może prowadzić do niebezpiecznych sytuacji. Kolejnym częstym błędem jest stosowanie nieaktualnych norm budowlanych, co naraża konstrukcję na ryzyko. Wreszcie, błędy w pomiarach mogą znacząco wpłynąć na dokładność obliczeń, co jest kluczowe dla bezpieczeństwa budynku.
Wskazówki dotyczące weryfikacji obliczeń obciążenia stropu
Aby upewnić się, że obliczenia obciążenia stropu są dokładne, warto zastosować kilka praktycznych wskazówek. Po pierwsze, zawsze warto podwójnie sprawdzić używane formuły oraz założenia. Konsultacje z doświadczonymi inżynierami budowlanymi mogą dostarczyć cennych informacji i wskazówek. Dobrze jest również korzystać z oprogramowania do obliczeń, które może pomóc w identyfikacji potencjalnych błędów. Regularne przeglądy i aktualizacja obliczeń w oparciu o zmieniające się normy budowlane są kluczowe. Na koniec, warto prowadzić dokumentację wszystkich obliczeń, co ułatwi przyszłe weryfikacje.






